2022-04-07
こんにちは!
岐阜県で唯一の平屋専門店、
平屋セレクトの三田です♪
なんと! 人気エリア!
本巣郡北方町に
平屋モデルハウスがオープンします!
オーナー様募集中ですので、
是非お気軽にお問い合わせください♪

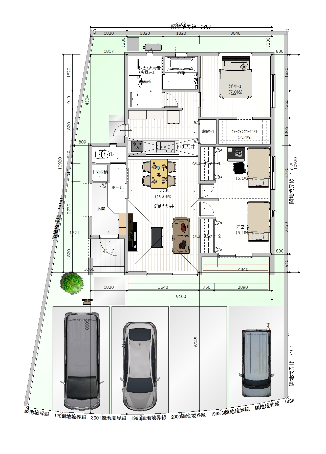
◇◇◇間取り図◇◇◇
◇◇◇物件情報◇◇◇
販売価格:3,250万円(税込)
■ 間取り:3LDK
■ 延床面積:25,54坪(84,47㎡)
■ 敷地面積:65,48坪(216,43㎡)
■ 駐車場:4台可
■ 住所:岐阜県本巣郡北方町高屋 仮換地15街区22画地
■ 建物現況:4月着工予定
■ 築年数:2022年8月下旬完成予定
■ 建物構造:木造
■ 電気:プロパンガス(床暖房あり)
◇◇◇周辺施設◇◇◇
● ホームセンターバロー北方店
約300m
● カネスエ北方店
約500m
今ならエアコン・家具サービス!!
●駐車4台
●南向き庭付き
●ウッドデッキ付
●デザイン格子
●オール電化
●3LDK
●浴室暖房
●電子キー
●対面キッチン
●土間収納
●宅配ボックス
■■■■■■■■■■■■■■■■■■■■■■■■■■■■
【岐阜市で展開!平屋専門店 平屋セレクト!】
今全国で人気急上昇中の平屋住宅に特化した平屋専門店が
ついに岐阜県岐阜市に上陸!平屋専門店 平屋セレクト。
普通はなかなか手が届かない平屋住宅をおてごろ価格で
買える時代になりました!
岐阜・各務原・大垣・瑞穂エリアの方必見の
平屋モデルハウス見学会を予約受付中です!
■■■■■■■■■■■■■■■■■■■■■■■■■■■■
【イベント情報】
「岐阜市内で平屋を建てたいけど、お金が…。」
という方は、見学会へ是非一度ご参加ください。
岐阜市エリアで平屋の新築モデルハウスが見学可能です。
2階建てを希望の方も、意外と知らない
平屋と2階建ての違いをお伝えいたします。
平屋セレクトの新築モデルハウスを一度ご覧ください!
■■■■■■■■■■■■■■■■■■■■■■■■■■■■
↓↓ネット予約の方はコチラから↓↓
(お電話でのご予約も承っております)